Prix

A proximité directe du centre ville, des commerces, plages et de la gare SNCF.
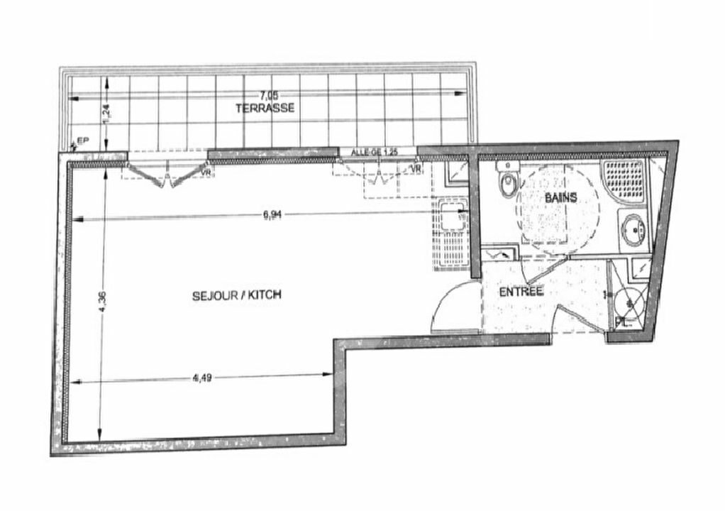
En étage élevé et offrant une vue dégagée, spacieux studio sur terrasse exposée Ouest sans vis à vis direct. Immeuble récent (2010). Prestations : Double vitrage, volets électriques, climatisation réversible gainable, interphone, ascenseur.
Appartement vendu loué. Idéal pour un investissement locatif proche de la gare SNCF.
A saisir !
Copropriété de 68 lots – dont 27 lots habitation.
Charges annuelles : 1200 euros.
3P ANTIBES BADINE avec jardin privatif, garage et grenier